btn_menu ( 011) 4255-8397 || (011) 4255-0702
Fotos Fotos
Datos Volver

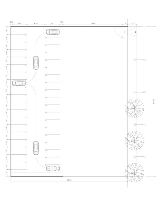
Playa de Estacionamiento 875 m2

Location Av. Gral. San Martín 2515 - Florencio Varela

Prev
Prev
Alquiler
$ 500.000
Propiedad

Garages

Superficie Total

Sup. total 875m2

Condicion

Estado Bueno

Codigo Código de propiedad: 503

Datos Acerca de la propiedad

Playa de estacionamiento de 875 m2 aprox.
con piso de hormigón, portón de dos hojas automatizado,
paredones linderos y capacidad para 36 cocheras.
Ubicado a pocas cuadras de la Municipalidad, comisaría, plaza y colegios.
Alquiler $ 500.000,- más Iva (con ajustes cuatrimestrales con el indice ICL).
 

Comodidades Comodidades

Cochera

cochera

Ver más vermas

Datos Ubicación

Alquiler

$ 500.000

Contacto

¿Te interesa esta propiedad?
Contactate ahora

Ver